Impressum

Angaben gemäß § 5 TMG

ABG Capital GmbH
Neue Mainzer Straße 75
60311 Frankfurt

Sitz der Gesellschaft

Frankfurt am Main,
Amtsgericht Frankfurt am Main
HRB 120708

Geschäftsführung

Christian Bock
Anton Holler

Kontakt

Telefon: +49 69 24705-0
E-Mail: info-frankfurt[at]abg-group.de

Bildnachweis

Visualisierungen: Bloomimages GmbH, Hamburg
Fotografie: Achim Reisner

3. Obergeschoss
[Einzelverzimmerung]

Arbeitsplätze

bis zu 40 pro Etage

BÜROFLÄCHEN

ca. 1.000 m²
inkl. Allgemeinflächenanteil

Lager

anteilige Lagerflächen
(insgesamt ca. 950 m²)

Büro
Meeting
Lounge
Teeküche
Sanitärbereiche
Flur
BARER24 Logo
Barer Strasse 24 | Maxvorstadt
München

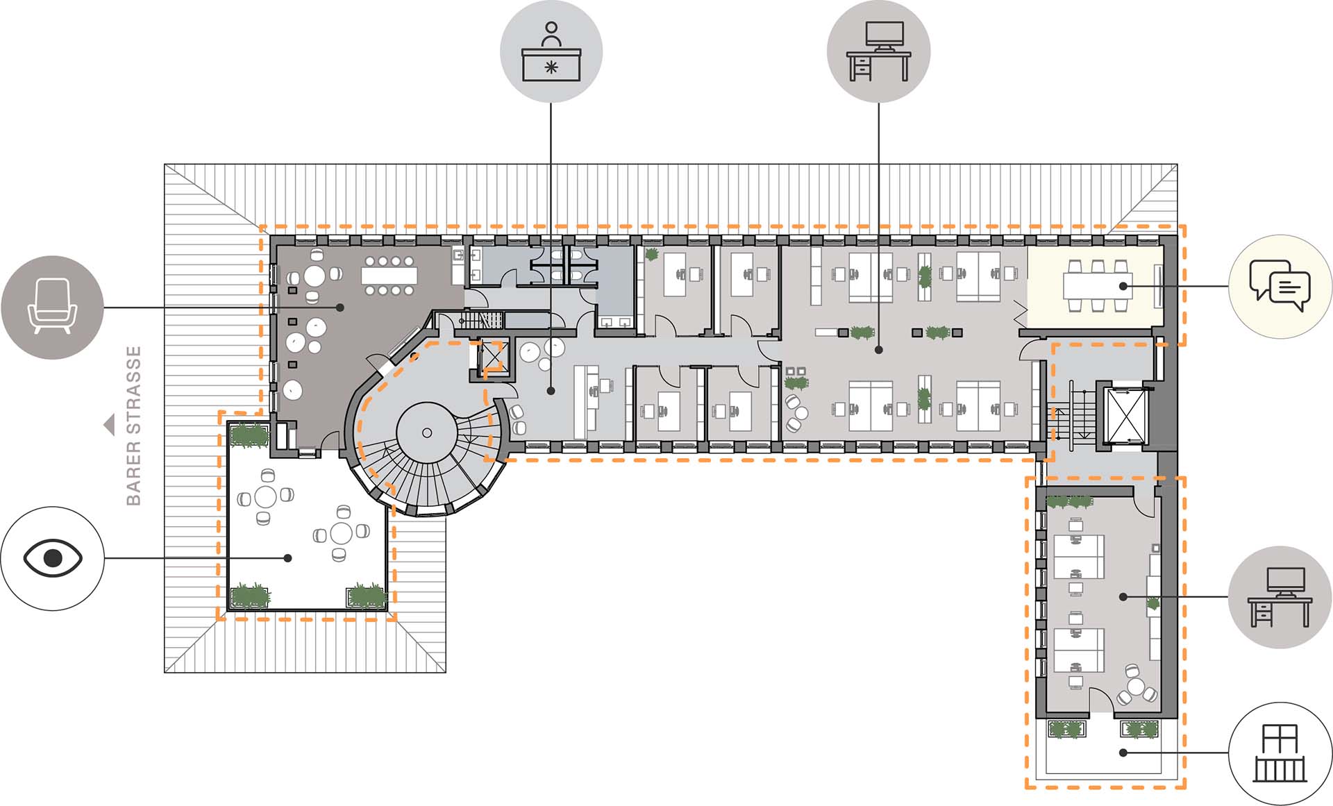
Erdgeschoss

BÜROFLÄCHEN

ca. 672 m²

Grundriss EG BARER24
Büro
Meeting
Lounge
Teeküche
Sanitärbereiche
Flur

Erdgeschoss – geteilt

BÜROFLÄCHEN

ca. 672 m²
teilbar: 499 m² + 174 m²

Büro
Meeting
Lounge
Teeküche
Sanitärbereiche
Flur

Regelgeschoss
[Kombizone]

Arbeitsplätze

bis zu 40

BÜROFLÄCHEN

ca. 1.022 m²

Lager

anteilige Lagerflächen
(insgesamt ca. 830 m²)

Büro
Meeting
Lounge
Teeküche
Sanitärbereiche
Flur

Regelgeschoss
[Open Space]

Arbeitsplätze

bis zu 40

BÜROFLÄCHEN

ca. 1.022 m²

Lager

anteilige Lagerflächen
(insgesamt ca. 830 m²)

Büro
Meeting
Lounge
Teeküche
Sanitärbereiche
Flur

Regelgeschoss – geteilt
[Open Space]

Arbeitsplätze

bis zu 40

BÜROFLÄCHEN

ca. 1.022 m²
teilbar: 907 m² + 115 m²

Lager

anteilige Lagerflächen
(insgesamt ca. 830 m²)

Büro
Meeting
Lounge
Teeküche
Sanitärbereiche
Flur

Regelgeschoss
[Einzelverzimmerung]

Arbeitsplätze

bis zu 40

BÜROFLÄCHEN

ca. 1.022 m²
inkl. Allgemeinflächenanteil

Lager

anteilige Lagerflächen
(insgesamt ca. 830 m²)

Büro
Meeting
Lounge
Teeküche
Sanitärbereiche
Flur

Regelgeschoss – geteilt
[Einzelverzimmerung]

Arbeitsplätze

bis zu 40

BÜROFLÄCHEN

ca. 1.022 m²
teilbar: 907 m² + 115 m²

Lager

anteilige Lagerflächen
(insgesamt ca. 830 m²)

Büro
Meeting
Lounge
Teeküche
Sanitärbereiche
Flur

5. Obergeschoss

Büroflächen

ca. 757 m²

(inkl. ca. 100 m² im 6. OG)

Büro
Meeting
Lounge
Teeküche
Sanitärbereiche
Flur

5. Obergeschoss – geteilt

Büroflächen

ca. 757 m²
teilbar: 568 m² + 89 m² + 100 m²

(inkl. ca. 100 m² im 6. OG)

Büro
Meeting
Lounge
Teeküche
Sanitärbereiche
Flur